
Podkrovní byt - Č. Budějovice
Stavební projekt a návrh interiéru, 2005-7
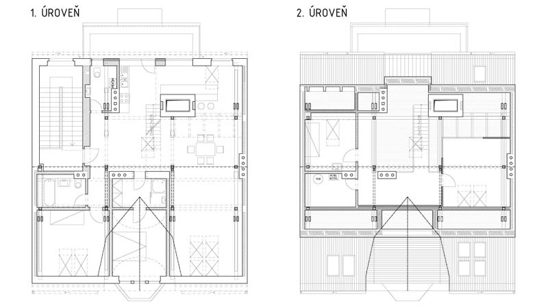
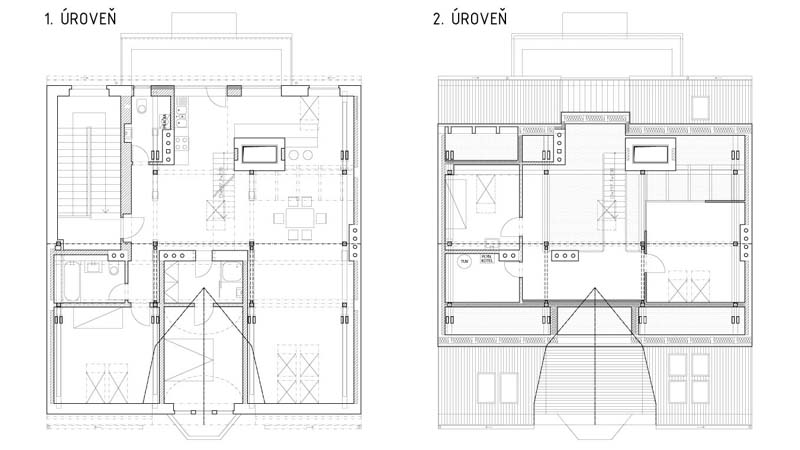
Jedná se o nově budovaný byt v podkroví řadového domu ze 30. let 20.st. Výška krovu dovolila navrhnou byt do dvou úrovní. Ve spodní vstupní úrovni se nachází otevřený obytný prostor s kuchyní a jídelnou, ložnice, pokoj, koupelna, WC a venkovní terasa. V horní úrovni je pracovna, galerie, technické zázemí a pokoj pro hosty. Přiznanou konstrukci krovu doplňuje dřevěná konstrukce vloženého patra. Při výběru materiálů byly preferovány přírodní materiály- dřevo. Interiér je řešen jednoduše, aby vyznělo prostorové a materiálové řešení.









