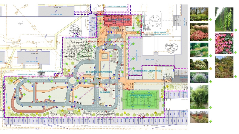
1_sadove
Dopravní hřiště, Hodonín
Projekt pro územní řízení, 2018 - 2019
Předmětem dokumentace pro územní řízení byl návrh dopravního hřiště se zázemím a potřebnými inženýrskými sítěmi a novým dopravním napojením. Navržené dopravní hřiště slouží pro výuku dopravní výchovy a doplňkově pro volnočasové aktivity především dětí a mládeže. Na volné ploše mezi bytovými domy, garážemi, základní a mateřskou školou „Duhovka“ je umístěno dětské dopravní hřiště s jízdními pruhy, chodníky, křižovatkami, dopravním značením, velínem a dále multifunkční hřiště, lezecká stěna, graffity stěna a objekt zázemí. Objekt zázemí slouží pro výuku dopravní výchovy a k uskladnění jízdních kol včetně potřeb pro provoz dopravního hřiště. Jedná se o přízemní stavbu s plochou střechou. V objektu zázemí se nachází jedna učebna, vstupní hala s šatnou, hygienické zařízení (WC), kabinet, úklidová komora, technická místnost, dva sklady jízdních kol a sklad překážek.