
Vinný sklep, Nechory
Studie a stavební povolení, 2015 - 2018
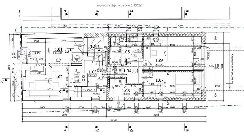
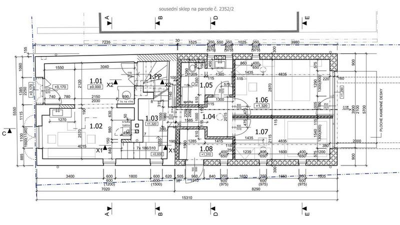
Nástavba a přístavba stávajícího vinného sklepa řeší rozšíření stávajícího zázemí vinného sklepa. Za stávajícím objektem sklepa je navržena přízemní přístavba řešená jako podkrovní objekt (nejedná se o plné patro). Nová přístavba slouží pro rodinnou rekreaci. Záměrem bylo přístavbu nespojovat se stávajícím objektem do jedné hmoty. Propojení přístavby a stávajícího objektu je průchodem ve štítové stěně z upravené mezipodesty stávajícího schodiště. Přístavba je záměrně navržena nižší a odlišuje se i v provedení omítky. Stavba je zastřešena dvěma sedlovými štítově orientovanými střechami respektující výškovou hladinu okolní zástavby.







