Arde6
Nová recepce areálu ArdeaPharma, Ševětín
Studie, 2019
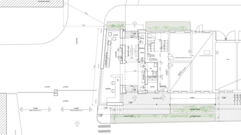
Navržená recepce do stávajícího výrobního a skladového areálu firmy ArdeaPharma má za úkol zvelebit vstupní část areálu. Nová přístavba nahrazuje stávající nevyhovující vrátnici. Objekt nové recepce je přistavěn ve dvou patrech ke stávající budově, která je částečně upravena. Součástí řešení je návrh uskladnění kol a motocyklů pro zaměstance. V přízemí je umístěná recepce a docházkový systém. V patře se nachází malá jednací místnost s kuchyňkou pro uživatele areálu.