chnv7
Charvátská Nová Ves - Břeclav
Studie + stavební povolení, 2020
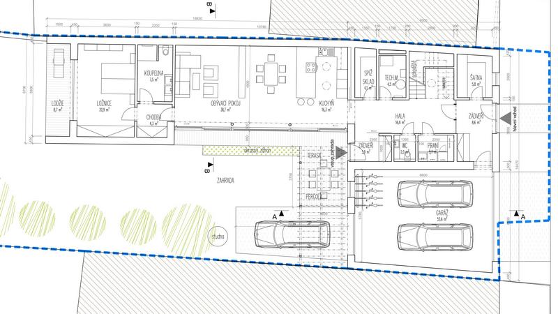
Rodinný dům nahradí zbouraný dům v řadové uliční zástavbě. Navržený dům má dvě části- uliční část a dvorní část. Směrem do ulice dům zachovává klasický tvar „přízemního“ domu se sedlovou střechou. Uliční část domu orientovaná do dvora je dvoupodlažní stavba zastřešená plochou střechou. Dvorní křídlo je přízemní se zelenou plochou střechou s extenzivní zelení. Na terasu před obytným prostorem ve dvoře bude navazovat podél stěny garáže pergola, která bude ozeleněna popínavými rostlinami. Prostor dvora bude zpevněn jen minimálně, počítá se se zahradními úpravami, výsadbou ovocných stromů a travnatou plochou. Denní část domu a ložnice se nachází v přízemí; v patře se nacházejí dětské pokoje a pokoj pro hosty. Obytné místnosti jsou záměrně orientované do klidného dvora.