
Jamné - Boršov nad Vltavou
Kompletní projektová dokumentace, 2019
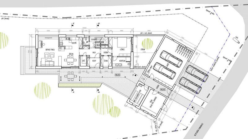
Navržený rodinný dům byl koncipován jako hmota dvou objektů (rodinného domu a garáže), které vytvářejí polouzavřený prostor. Objekty mají výrazně podélný tvar a jsou zastřešeny sedlovými střechami bez přesahu. Hmotové řešení novostavby evokuje jednoduché objemy tradiční vesnické zástavby (stodol, domků, statků...) Novostavba rodinného domu je ve svém konceptu inspirovaná tradiční vesnickou zástavbou neboť stavba vzniká na okraji malebné jihočeské vesnice.








