
Hlohovec - řadová zástavba
Ideová studie, 2010
Řadová zástavba s vnitřními dvory představuje typ kompaktní zástavby, která vychází z tradičního uspořádání vesnických sídel na Moravě. Představuje vyzkoušený, fungující model zastavění, který nabízí obyvatelům vysoký komfort bydlení. Vznikají intimní chráněné prostory polouzavřeného nebo i uzavřeného dvora. Domy vytvářejí ulice, které jsou důležité a potřebné pro správný urbanistický rozvoj obce.
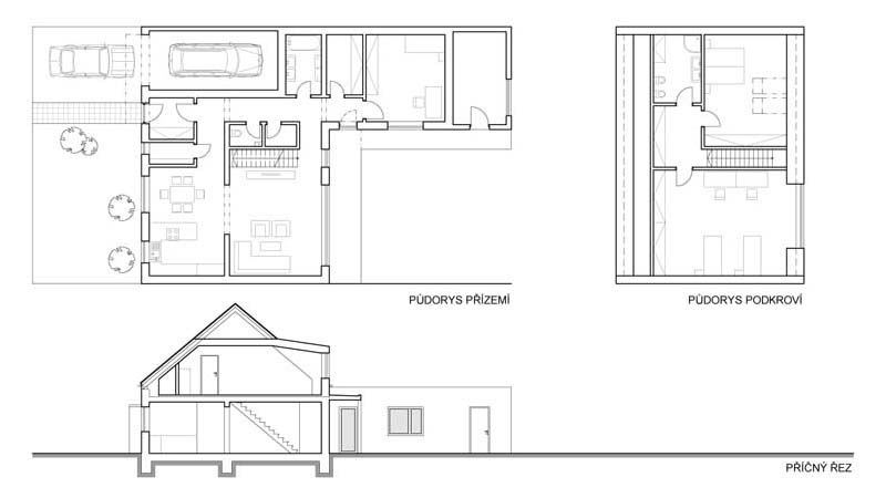
Domy jsou řešeny jako přízemní. Uliční část domů je zastřešena sedlovou střechou, hřeben střechy je souběžný s ulicí. Některé domy mají využívané podkroví, které je přístupné jednoramenným schodištěm. Domy mohou být řešeny jako jednogenerační nebo dvougenerační. Dispozice domů je flexibilní a je možné ji do určité míry přizpůsobit individuálním potřebám stavebníka. Domy jsou vhodné na rovinaté pozemky.













