eDUM.cz
Projekty
Ve výstavbě
Aktuality
Kontakt
rodinné domy
RD Tvrdonice
Charvátská Nová Ves - Břeclav
Jamné - Boršov nad Vltavou
Blatnice, RD a zahradní domek
Úvaly- rodinný dům
Mikulčice - rodinný dům
Hohenau, Rakousko - přístavba rodinného domu
RD v Radobyčicích
SPA domek
Typové řadové domy
Hlohovec - řadová zástavba
Zlín - pasivní dům
Mlčechvosty - NED
Chotoviny - NED
Rosice - řadové domy
Zeleneč - přístavba
interiéry
občanské stavby
urbanismus
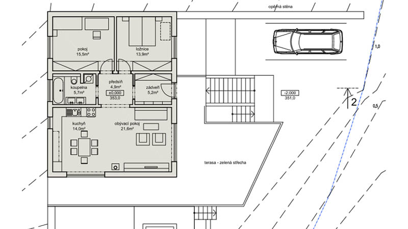
RD v Radobyčicích
Studie 2012
Jedná se o pracovní návrh rodinného domu na svažitém pozemku.