
Zlín - pasivní dům
Studie, 2010
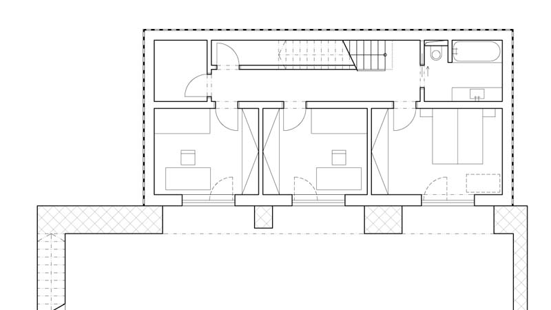
Samostatně stojící rodinný dům navržený do velmi svažitém pozemku. Obytná část domu- kuchyně, obývací pokoj pracovna a vstup se nacházejí v nadzemním podlaží. Ložnice a pokoje na spaní mají okna do zahrady a jsou situovány v podzemní podlaží. Garáž je řešena samostatně. Svah zpevňují opěrné gabionové stěny. Dům má kompaktní tvar a minimum ochlazovaných ploch. Rozměry a stínění oken jsou navrženy tak, aby nedocházelo v letních měsících k přehřívání interiéru. Na střeše domu budou umístěny solárně-termické kolektory pro ohřev vody v integrovaném zásobníku tepla. Větrání objektu bude nucené s rekuperací tepla, vytápění bude zajištěno teplovzdušně.













